Architect Consulting
- 先ずは建築予定地の調査から
- 敷地調査結果を報告致します
- ご要望プランのヒアリング
- プランご提案
- あくまでも仮プラン
- 仮プランを建築会社へ
間取りプランのご相談の前に、建築予定地を確認させて頂きます。敷地に接している道路状況や隣地との高低差、上下水道の有無等を調べます。
また、建築確認申請以外に必要な申請があるのか等も役所へ行って確認致します。
作成した敷地調査報告書をもとに、建物を建てるための法的制限や費用の掛かりそうな造成工事・外構工事・給排水接続工事の必要性等ご説明致します。
どのような性質の敷地なのか把握することはとても大事です。
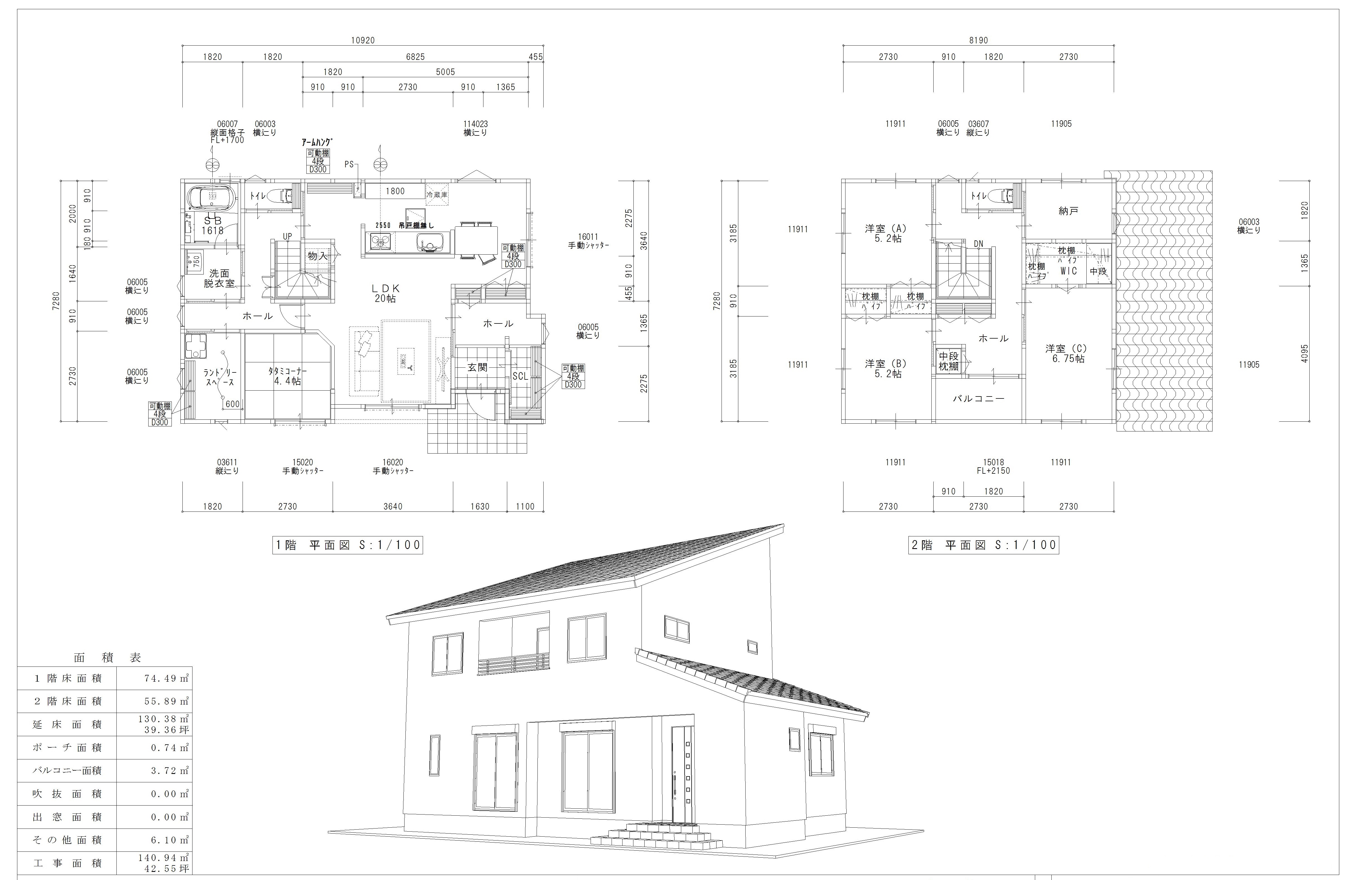
どの様なマイホームを造りたいのかお伝えください。
リビングの広さや水回りのご要望など、その場で手書きでラフ図を描きながらこうしたいああしたいを図面化し、ご納得の間取りプランをつくり上げていきます。
ラフ図を3Dソフトに入力し、平面図は勿論ですが、外観パースや内観パースも見て頂きリアルなイメージをご確認する事ができます。
打合せしながら2階建てをやはり平屋にしたい等の変更も可能ですが、プランの修正打ち合わせは初回含めて3回まで可能です。
当社からご提案のプランは、あくまでもお客様の敷地に合わせたリアルな参考プランとしてご確認下さい。
仮プランによって建物の坪数や部屋の広さ、ある程度の建物予算が把握でき、マイホーム実現の具体的なイメージを持つことが可能です。
当社作成のプランは著作権は付けませんので、ご検討の建築会社へお見せしても問題ありません。
仮プランをもとに新たにプランを作成してもらってもOKですし、そのままお見積を依頼されるのもよろしいかと思います。
